047
316000 €

Overview

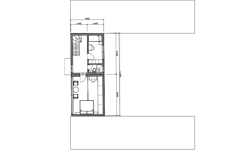
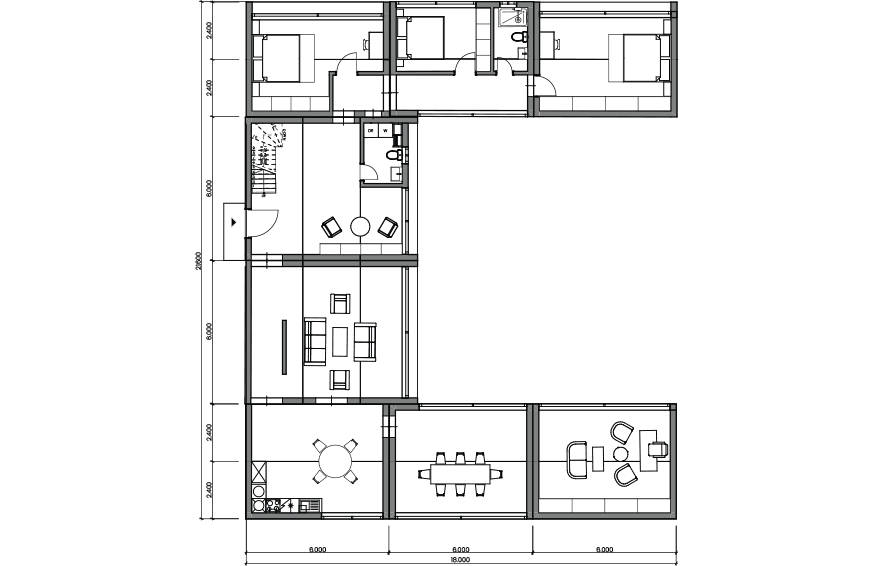
Floor plans

Contemporary

Specifications

Alstone homes are made by way of classic, tried-and-true, stick-built construction. Our homes are modular homes,
they are prefabricated; they’re built on Factory. Below, you can find a general overview of the components of the Type 001.

Brands included in your home

Your Villa comes equipped with a fully finished bathroom, featuring premium fixtures, elegant ceramic tiles, a spacious walk-in shower, and water-saving fittings for comfort and efficiency.
Your Villa comes equipped with a modern kitchen, featuring premium cabinetry, soft-close drawers, durable countertops, and built-in energy-efficient appliances for a seamless cooking experience.
Your Villa comes equipped with a complete electrical installation, featuring premium wiring, energy-efficient LED lighting, and a modern breaker panel for safe and reliable power throughout your home.

Reinforced concrete volumetric modules engineered for seismic, wind, and long-term structural resilience. Built to exceed international building standards.

Factory-precision insulated walls, floors, and roofs with no thermal bridges—delivering superior energy efficiency and weather protection.

Fully finished interiors with integrated plumbing, electrical, and ventilation systems, ready for immediate occupancy.

High-quality European and global suppliers selected for reliability, performance, and sustainability.

Pre-installed, code-compliant electrical systems with capacity for smart-home and renewable energy integration.

Durable, modular low-maintenance finishes tailored to client specifications, from contemporary vinyl to premium tile or hardwood.

Energy-efficient, double- or triple-glazed systems ensuring thermal comfort, acoustic control, and modern aesthetics.

Pre-engineered HVAC and ventilation solutions, adaptable for climate control, air quality, and energy efficiency.